查看: 30408|回复: 26

天津万科水晶城一、二期规划建设详细资料

[复制链接]

47

主题

47

主题

47

主题

积分
741
发表于 2007-10-21 03:40:11 | 显示全部楼层 |阅读模式
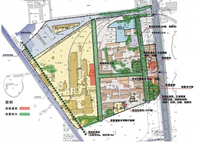
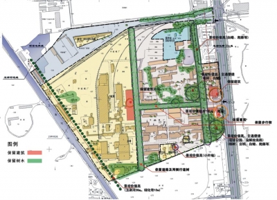
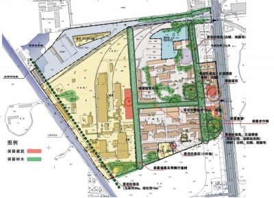
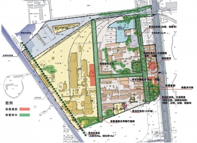
万科水晶城位于梅江南板块卫津河东岸,北接潭环支路,南至浯水道,西起友谊路延长线,东临解放南路。总占地近670亩,建筑面积约40万平方米,包括9个组团。主要有三种住宅类型:万科专利的专利产品———情景花园洋房、TownHouse产品———联院别墅,以及创新多层公寓———院景公寓。万科水晶城通过保留、对比、叠加的手法,营造了丰富的欧洲小城意象和浓厚的历史感、文化感,创造富有地域文化内涵,体现历史文脉的现代生活社区。建筑借鉴了欧洲小城和天津“五大道”的风格和神韵,外观色调素雅、稳重,层次丰富,材料的质感极强,内部空间布局更为新颖,尺度更加合理。万科水晶城一期已于5月18日开盘,现场示范区全面开放,情景花园洋房和院景公寓样板间对外展示,4000多平方米林溪广场以茂密的阴凉迎接每一位前来的客户。
       万科水晶城一期共计732户,建筑面积约11万平方米,于2004年6月底入住。整个项目的开发时间预计3—4年。
       以下是我收集的万科水晶城的详细资料。
038-1.jpg
038-3.jpg
038-4.jpg
038-5.jpg
038-11.jpg
038-12.jpg
038-13.jpg
038-15.jpg
038-14.jpg

47

主题

47

主题

47

主题

积分
741
 楼主| 发表于 2007-10-21 03:46:46 | 显示全部楼层
2
038-7.jpg
038-8.jpg
038-9.jpg
038-9a.jpg
038-16.jpg
038-17.jpg
038-18.jpg
038-19.jpg
038-20.jpg
038-21.jpg

47

主题

47

主题

47

主题

积分
741
 楼主| 发表于 2007-10-21 03:50:18 | 显示全部楼层
3
038-22.jpg
038-23.jpg
038-24.jpg
038-25.jpg
038-26.jpg
038-27.jpg
038-28.jpg
038-29.jpg
038-30.jpg
038-31.jpg
038-32.jpg
038-33.jpg

47

主题

47

主题

47

主题

积分
741
 楼主| 发表于 2007-10-21 03:55:30 | 显示全部楼层
4
060-3.jpg
060-4.jpg
060-5.jpg
060-6.jpg
060-7.jpg
060-8.jpg
060-9.jpg
060-10.jpg
060-12.jpg
2667234.jpg
2667247.jpg
2667257.jpg
2667274.jpg
2667280.jpg

47

主题

47

主题

47

主题

积分
741
 楼主| 发表于 2007-10-21 03:59:24 | 显示全部楼层
5
2667285.jpg
2667298.jpg
2667305.jpg
2667323.jpg
2667330.jpg
2667335.jpg
2667364.jpg
2667376.jpg
2667409.jpg
2667440.jpg

679

主题

679

主题

679

主题

积分
3736
QQ
发表于 2007-10-21 12:04:15 | 显示全部楼层
很丰富的资料,怎么搞到的!顶了!
http://www.archiant.com/blog

0

主题

0

主题

0

主题

积分
1
QQ
发表于 2007-10-25 04:29:26 | 显示全部楼层
真的很经典~谢谢分享了

0

主题

0

主题

0

主题

积分
7
发表于 2007-11-1 05:22:43 | 显示全部楼层

不错,很好的资料

:29

2

主题

2

主题

2

主题

积分
15
发表于 2007-11-1 15:04:46 | 显示全部楼层
楼主,图太小了,看不清楚,是不是涉及知识产权保护,才有意这样做的。能不能给我发份大点的?谢谢了!wwymax@126.com.

0

主题

0

主题

0

主题

积分
14
发表于 2007-11-17 05:34:25 | 显示全部楼层
可以给我发一份么?
谢谢
pszczxx@163.com

0

主题

0

主题

0

主题

积分
26
发表于 2007-12-18 00:04:58 | 显示全部楼层

太好了

继续努力!!!

0

主题

0

主题

0

主题

积分
1
发表于 2007-12-20 05:23:59 | 显示全部楼层
不错,就是图小了点.

0

主题

0

主题

0

主题

积分
6
发表于 2007-12-27 15:28:50 | 显示全部楼层
看来一些同志还不知足啊。
楼主能拿出来共享已经很好了。
谢谢!!

0

主题

0

主题

0

主题

积分
4
发表于 2008-3-24 11:15:27 | 显示全部楼层
图需要点开就大了啊,好东东

0

主题

0

主题

0

主题

积分
27
发表于 2008-4-15 04:49:37 | 显示全部楼层
好就一个字 楼主真慷慨
您需要登录后才可以回帖 登录 | 加入蚂蚁

本版积分规则

Copyright © 2019-2023 果核发展 .All rights reserved.

Archiver|手机版| |陕ICP备19013355号  QQ  
Powered by Discuz! X3.5  © 2001-2013 Comsenz Inc.
快速回复 返回顶部 返回列表