查看: 8962|回复: 12

给自己家设计的独立住宅

[复制链接]

3

主题

3

主题

3

主题

积分
99
QQ
发表于 2007-12-10 09:17:47 | 显示全部楼层 |阅读模式
即将要毕业了 最近为给家里设计的一独立住宅而深思苦想
希望各位先辈 师哥师姐师弟师妹给予宝贵意见
水平有限 望大伙很抛砖

[ 本帖最后由 cxjz 于 2007-12-11 10:33 编辑 ]
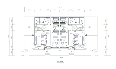
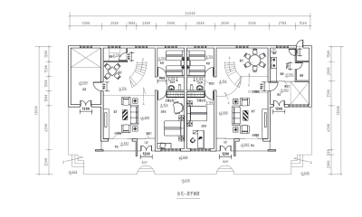
南立面.jpg
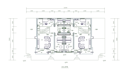
一层平面.jpg
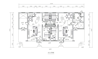
二层平面.jpg

3

主题

3

主题

3

主题

积分
99
QQ
 楼主| 发表于 2007-12-11 02:13:49 | 显示全部楼层
3

[ 本帖最后由 cxjz 于 2007-12-11 10:20 编辑 ]
住宅效果图.jpg

3

主题

3

主题

3

主题

积分
99
QQ
 楼主| 发表于 2007-12-11 02:15:42 | 显示全部楼层
4

[ 本帖最后由 cxjz 于 2007-12-11 10:20 编辑 ]
住宅.jpg

117

主题

117

主题

117

主题

积分
987
发表于 2007-12-11 05:10:38 | 显示全部楼层
看平面图象是双拼别墅的意思,平面功能布局还是比较规矩的,就是那个弧形楼梯有点勉强了,如果是商品住宅,一定不会这样做的,太浪费了。
造型上看的出模仿乌德勒支住宅的意思,用简洁的几何体块做造型元素,构成上还不够精到!还可以再推敲推敲。

0

主题

0

主题

0

主题

积分
1
发表于 2007-12-15 23:26:36 | 显示全部楼层

我的感受

效果图是用什么软件坐的啊!!室内的布局还行就是二楼的厕所不应该正对楼梯吧着样在风水学,和心理学上都不好,你开了两个入口都是一样大小那一个才是主入口啊!!

3

主题

3

主题

3

主题

积分
99
QQ
 楼主| 发表于 2008-1-7 16:18:12 | 显示全部楼层
建模用SU做的  没用过???

3

主题

3

主题

3

主题

积分
99
QQ
 楼主| 发表于 2008-1-7 16:19:18 | 显示全部楼层
多谢 楼上的各位给予宝贵意见!

3

主题

3

主题

3

主题

积分
32
发表于 2008-3-9 14:00:32 | 显示全部楼层
恩,的确是造型上有点模仿乌德勒支住宅,抽象点就可以看作一个立体构成,立面上的平面构成,要是再在外形上有一点自己的创新就更好了,拙见啊

3

主题

3

主题

3

主题

积分
99
QQ
 楼主| 发表于 2008-3-18 02:07:08 | 显示全部楼层

改了后

在立面效果上又做了些东东
这张图颜色没调好,看得不是很清
希望各位再给宝贵意见,多谢了!!1
最终11.jpg

3

主题

3

主题

3

主题

积分
99
QQ
 楼主| 发表于 2008-3-25 13:30:28 | 显示全部楼层

改了些

透视图11.jpg
透视图22.jpg

0

主题

0

主题

0

主题

积分
6
发表于 2008-6-1 02:40:04 | 显示全部楼层
感觉外观太方正了。

0

主题

0

主题

0

主题

积分
18
发表于 2008-9-18 15:37:13 | 显示全部楼层
空間好像過於擁擠?

3

主题

3

主题

3

主题

积分
99
QQ
 楼主| 发表于 2008-10-14 11:48:21 | 显示全部楼层
各位说的我都体会很深  再次谢之
您需要登录后才可以回帖 登录 | 加入蚂蚁

本版积分规则

Copyright © 2019-2023 果核发展 .All rights reserved.

Archiver|手机版| |陕ICP备19013355号  QQ  
Powered by Discuz! X3.5  © 2001-2013 Comsenz Inc.
快速回复 返回顶部 返回列表