欢迎您的到来! 您还不是本站会员,请:注册登录
人气 14773

我为自己做的方案 [复制链接]

paoli ~ 2007-12-24 05:55:18
我为自己做的方案
123透.jpg
321透.jpg
20071224004247531.jpg
20071224004555187.jpg
20071224004726359.jpg
20071224005311000.jpg
20071224005949921.jpg
20071224005957812.jpg
20071224010018703.jpg
还没做门面.jpg
20071224004247531.jpg
满满看.jpg2.jpg
总店一楼全观12.jpg
树点 ~ 2007-12-25 02:16:59
这个小孩捧着模型很有意思!
思维很发散
ANT ~ 2007-12-25 02:35:03
方案看不太清楚,模型和表现图的还是不错~!
youpengzeqing ~ 2007-12-31 02:32:53

效果挺好的

但资料详细些就更好了
○吉 ~ 2008-7-2 13:08:59
不錯 不錯 很有感覺,樓主做的很細膩,看房間傢具就就可以知道是費了很多心血的。
看起来有点游戏里卡通渲染的样子,外面再做详细点就好了,期待啊!
notfish ~ 2008-7-2 13:36:13
能把平面图发上来吗?
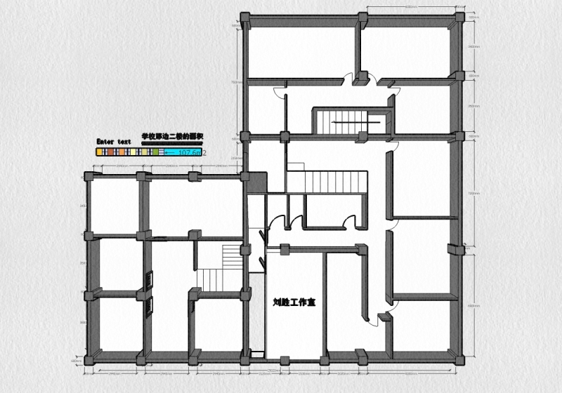
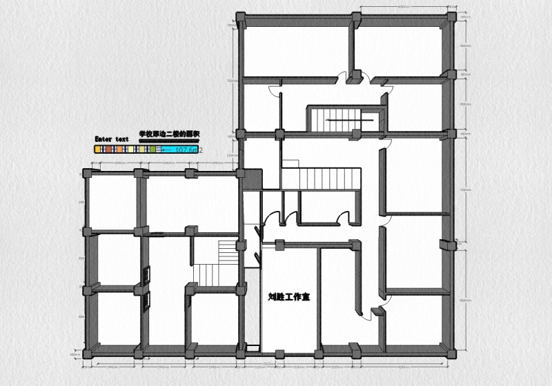
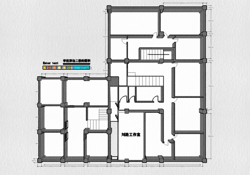
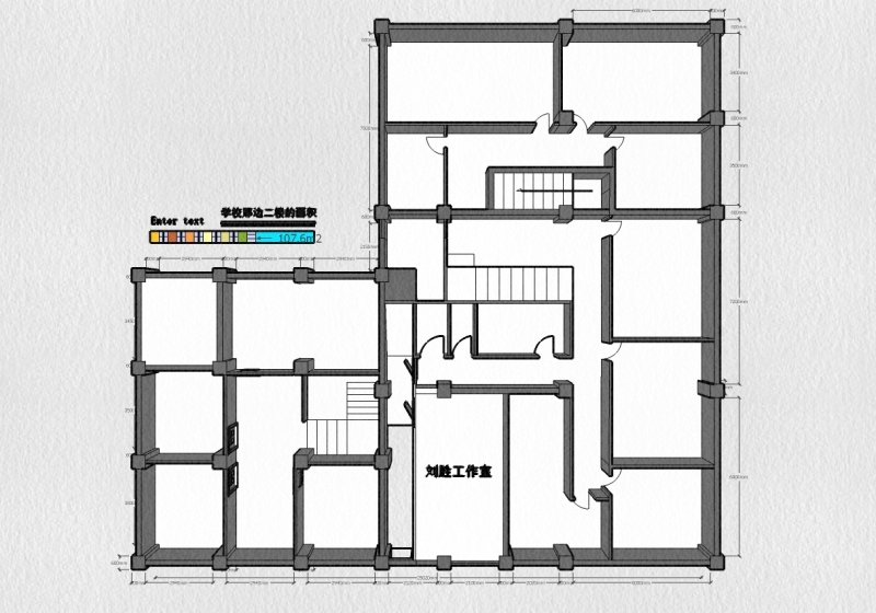
paoli ~ 2008-8-9 23:12:38

平面

平面图
总店一楼平面1.jpg4.jpg
整体二楼.jpg7.jpg8.jpg
整体二楼.jpg10.jpg
三楼平面.jpg
三楼平面.jpghhhhh.jpg
一楼厕所.jpg
一楼厕所2.jpg
树点 ~ 2008-8-10 01:05:39
我觉得你有必要知道下什么是方案表达!
表达清除永远是第一位的!表达很弱!
dbmz_njzy ~ 2009-9-26 06:42:33
室内的墙面装饰过于花哨,并且室内空间感觉较拥挤
zxffd1 ~ 2009-10-27 03:05:10
OOO---我没太看明白...
不过做得很细!
pp1357pp24 ~ 2009-10-27 03:20:31
楼梯处在没有光照和通风对流的空间里功能上不大合适,二层有的柱子怎么在房间里,如果在一层有柱子,做梁挑出不就行了吗
您需要登录后才可以回帖 登录 | 加入蚂蚁

本版积分规则

站长推荐

上帝视角,日本军事基地探秘

海上自卫队(主要港口与航空基地) 横须贺基地(神奈川县): 虽然主要是美军第七舰队母港,但也是海上自卫 ...

贝壳书屋|可变的城市微型公共空间

祥云小镇拥有成熟的社区商业基底与常态化公共艺术布局,场地人流密集、活动多元,是周边居民日常活动与 ...

代官山樱花树下米其林甜品店

东京代官山的DOLCE TACUBO甜品店,是由Tadokoro Architects设计。建筑主体延伸出一个木质框架,营造了悬 ...

木屋酒店

木屋酒店坐落于贵州大山深处的深度贫困村——团结村,是当地企业在政府扶贫政策引导下,依托农业旅游助力 ...

博阿里奥广场(Foro Boario)城市更新项目

项目概况 项目位于意大利佛罗伦萨省圣洛伦佐堡,依托国家复苏与韧性计划(PNRR)资金落地,是聚焦边 ...

1 2 3 4 5

QQ|Archiver|手机版|建筑蚂蚁 ( 陕ICP备19013355号 )

GMT, 2026-5-14 , Processed in 0.105227 second(s), 30 queries .

Powered by Discuz! X3.5

© 2001-2026 Discuz! Team.

快速回复 返回顶部 返回列表