欢迎您的到来! 您还不是本站会员,请:注册登录
人气 10503

法西斯宫解读 [复制链接]

yyb ~ 2008-5-29 03:57:55
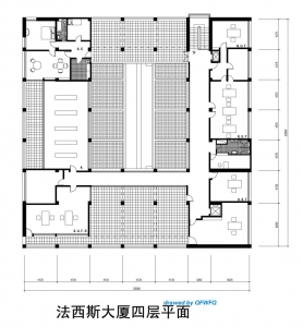
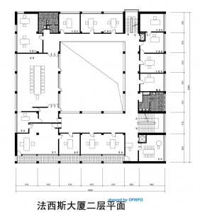
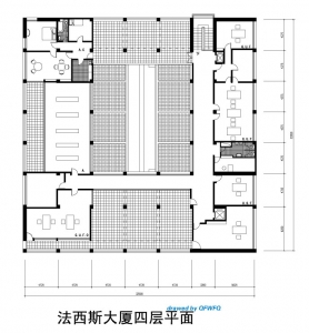
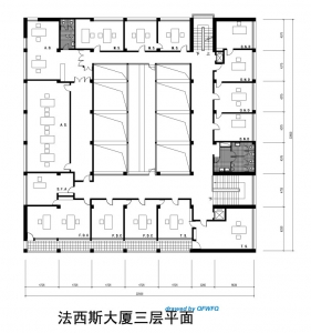
特拉尼como的法西斯宫解读
1084970151.jpg
1084970456.jpg
1084970506.jpg
1084970750.jpg
1084973545.jpg
1084974102.jpg
1084974332.jpg
1084974528.jpg
1084974683.jpg
84999586 ~ 2008-5-29 04:10:04
小乙山 ~ 2008-6-3 06:06:41
具体介绍下这个建筑的特色在哪里?匠心独运的地方是哪里?
飞机上挂暖瓶 ~ 2008-9-12 09:56:32
还以为是希特勒那个~:25
ciga134 ~ 2008-11-10 14:23:54
G.特拉尼的杰作哦....
lxbin825 ~ 2008-11-11 10:31:15
好像没怎么解读
赤子 ~ 2009-8-21 12:27:12
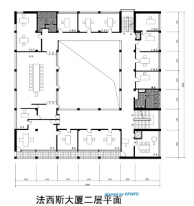
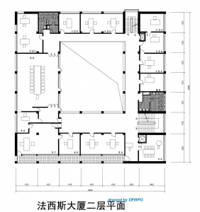
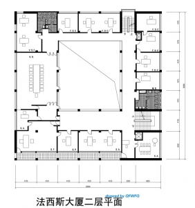
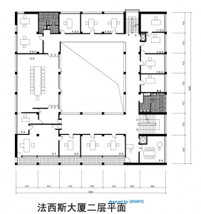
此建的经典就是内部的中庭空间,从历史的角度来看,那时候出现如此的中庭绝对是一种大创新...另外它的结构体系对那时候来讲是典型的现代主义和立面完全反应了内部空间,,,从建筑本身的角度来看,上面的一些东西仍然有可取之处,
qwerty999 ~ 2009-12-14 11:24:48
我觉得还不错啊
★【随风】★ ~ 2010-1-21 06:07:12
是结构与立面的结合。。。
加伊 ~ 2010-1-22 08:03:11
回去慢慢品味...
您需要登录后才可以回帖 登录 | 加入蚂蚁

本版积分规则

站长推荐

上帝视角,日本军事基地探秘

海上自卫队(主要港口与航空基地) 横须贺基地(神奈川县): 虽然主要是美军第七舰队母港,但也是海上自卫 ...

贝壳书屋|可变的城市微型公共空间

祥云小镇拥有成熟的社区商业基底与常态化公共艺术布局,场地人流密集、活动多元,是周边居民日常活动与 ...

代官山樱花树下米其林甜品店

东京代官山的DOLCE TACUBO甜品店,是由Tadokoro Architects设计。建筑主体延伸出一个木质框架,营造了悬 ...

木屋酒店

木屋酒店坐落于贵州大山深处的深度贫困村——团结村,是当地企业在政府扶贫政策引导下,依托农业旅游助力 ...

博阿里奥广场(Foro Boario)城市更新项目

项目概况 项目位于意大利佛罗伦萨省圣洛伦佐堡,依托国家复苏与韧性计划(PNRR)资金落地,是聚焦边 ...

1 2 3 4 5

QQ|Archiver|手机版|建筑蚂蚁 ( 陕ICP备19013355号 )

GMT, 2026-5-13 , Processed in 0.102412 second(s), 26 queries .

Powered by Discuz! X3.5

© 2001-2026 Discuz! Team.

快速回复 返回顶部 返回列表